Mercat de Les Tres Torres

Emplaçament
Barri de Les Tres Torres
Població
Barcelona
Equip d'arquitectura
Mercè Zazurca
César Sánchez
Equip d'estructura
BBG Estructures
Promotor
Mercats de Barcelona
Superfície
900m²
PEM estructura
40.000€
Any de projecte
2014
Any de construcció
2016
Categoria
Mercats
Descripció

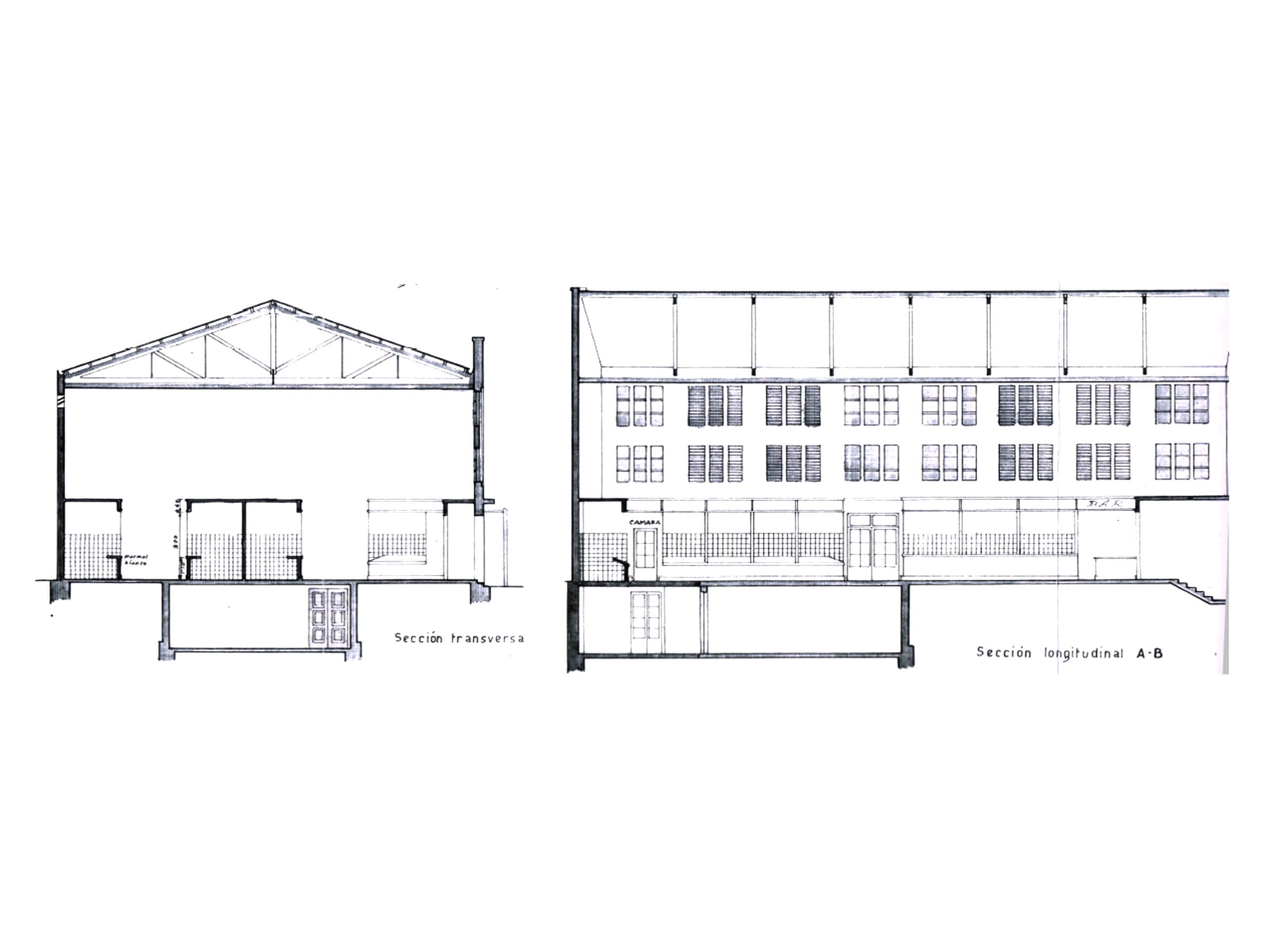
El Mercat de Les Tres Torres era el típic Mercat de barri, organitzat en parades disposades al voltant d'un anell de circulació. Al llarg dels anys havia mantingut un cert aire familiar, sense estridències de cap mena.

Presentava, però, dos problemes importants: per una banda, la seva coberta d'encavallades de fusta s'havia degradat amb el temps i, per l'altra, les successives instal·lacions tècniques de subministrament de llum, aigua i refrigeració s'havien renovat sense retirar-ne les obsoletes. Per aquestes dues causes, el mercat donava una imatge poc atractiva.

El projecte consistia a sanejar l'estructura i l'acabat de les cobertes, al mateix temps que es racionalitzaven algunes instal·lacions. Es va mantenir la idea d'utilitzar la fusta com material bàsic i es va canviar la secció de les cobertes, configurant una nova entrada de llum zenital. No es va refer el fals sostre, deixant l'estructura a la vista.