Museu de l'Esport de Bakú

Població
Bakú, Azerbaidjan
Equip d'arquitectura
Pujol Arquitectura
Equip d'estructura
BBG Estructures
Promotor
Ministeri de l'Esport d'Azerbaidjan
Superfície
7.000m²
Any de projecte
2016
Categoria
Museus
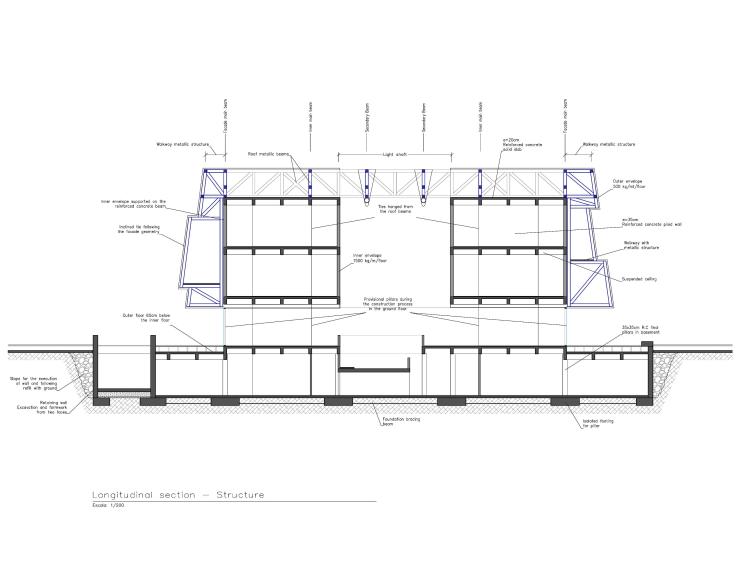
Descripció

El Ministeri de l'Esport d'Azerbaidjan va promoure la creació d'un nou Museu de l'Esport a la capital del país, Bakú. L’arquitecte Joaquim Pujol, especialitzat en edificacions esportives, tenia l’encàrrec de fer la construcció del museu. El projecte executiu es va desenvolupar amb una enginyeria local, però tota la primera fase de definició i avantprojecte es va realitzar des de Barcelona, a BBG Estructures. Les nostres tasques van finalitzar amb una documentació bàsica però suficientment definida per encarar el desenvolupament de les següents fases del projecte.